1徽派合院使用欧式家具如何过渡?

农村且拥有宅基地的朋友,都会考虑自建一套徽派合院式别墅。

的确,不落凡俗的格局和自成天地的合院,相信自建一套徽派别墅,才是正道。

徽派家具:徽派合院使用欧式家具如何过渡?

△自建徽派合院别墅 总平面示意图

本案自建别墅,项目位于江西,该宅基地西北两侧均为道路,东南两侧均相邻邻居住宅。在建房伊始,户主就对徽派古建的飞檐和墙面装饰情有独钟,所以最后选定了徽派风格。

在建筑设计上,以徽派合院别墅为主,并通过廊道的连接,加强了别墅的整体性。

徽派家具:徽派合院使用欧式家具如何过渡?

△自建徽派合院别墅 一层平面图

一层平面布局中,中堂被设置成了接待空间,并和书房茶室进行了连通,连通处以屏风和博古架进行了分隔,更显大气。在西南角设置了棋牌室,与老人房相邻,方便老人日常与人。车库被设置在了西南角和小厨房相邻。

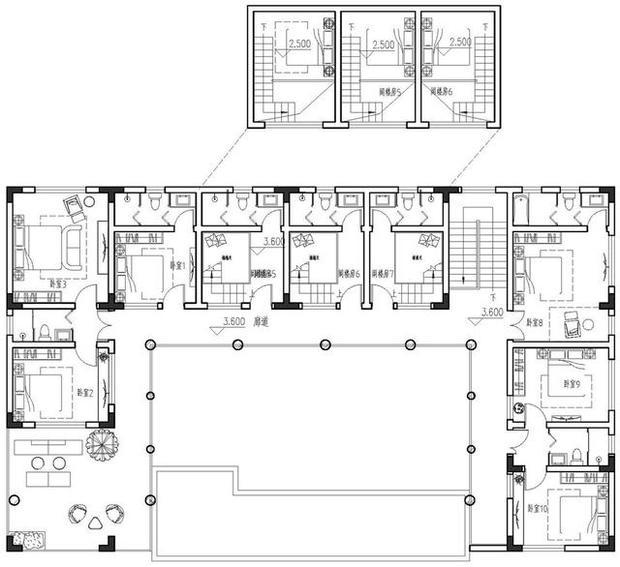
徽派家具:徽派合院使用欧式家具如何过渡?

△自建徽派合院别墅 二层平面图

二层主要设计成器具空间,共计布置了12间卧室,且都配有独立卫生间。东西两侧各有一间套房,而西南角露台设置了露天观景场所。

徽派家具:徽派合院使用欧式家具如何过渡?

△自建徽派合院别墅 鸟瞰图

整体别墅建筑为徽派风格,立面上以粉墙黛瓦来展现传统建筑之雅,屋顶则使用了挑檐并搭配马头墙,提现了豪宅般的层次感和大气感。

徽派家具:徽派合院使用欧式家具如何过渡?

△自建徽派合院别墅 鸟瞰图

里面下部采用了仿古面砖,增强了历史感,和屋顶的青瓦遥相呼应,起到了整体的连贯性。

徽派家具:徽派合院使用欧式家具如何过渡?

△自建徽派合院别墅 鸟瞰图

在廊道设计上,运用了木质传统花纹,搭配精美的雕刻装饰,让整体建筑古色生香。错落有致的布局,加上庭院之中的景色,不愧是国人的豪宅。

徽派家具:徽派合院使用欧式家具如何过渡?

△自建徽派合院别墅 鸟瞰图

徽派家具:徽派合院使用欧式家具如何过渡?

△自建徽派合院别墅 西南侧效果图

马头墙和墙体之上选用了条形装饰,并配上了大红灯笼,让徽派别墅有了视觉亮点,更有了红火的生活寓意,塑造出大户人家的既视感。

徽派家具:徽派合院使用欧式家具如何过渡?

△自建徽派合院别墅 东南侧效果图

别墅门楼,以挑檐来增加大气感,门前台阶上配上了一对石狮,威严之中富有古韵之感。处处可见的精心设计,让整栋徽派合院别墅显得尤为庄重,极具风韵,仪式感极强。

徽派家具:徽派合院使用欧式家具如何过渡?

△自建徽派合院别墅 院门效果图

徽派家具:徽派合院使用欧式家具如何过渡?

△自建徽派合院别墅 庭院鸟瞰图

庭院设计上,以水景加上假山的搭配,让整个庭院之间,山水之景兼具,堪称小小的世外桃源。

徽派家具:徽派合院使用欧式家具如何过渡?

△自建徽派合院别墅 庭院效果图

庭院之中,以廊道作为分割点,信步廊道之中,可以观景赏景,几尾锦鲤,几只清荷,简直是美如诗画般。

徽派家具:徽派合院使用欧式家具如何过渡?

△自建徽派合院别墅 庭院效果图

徽派家具:徽派合院使用欧式家具如何过渡?

△自建徽派合院别墅 东立面图

徽派家具:徽派合院使用欧式家具如何过渡?

△自建徽派合院别墅 西立面图

徽派家具:徽派合院使用欧式家具如何过渡?

△自建徽派合院别墅 南立面图

2安徽省徽派家私有限责任公司怎么样?

安徽省徽派家私有限责任公司是2006-07-05在安徽省六安市注册成立的有限责任公司(自然人投资或控股),注册地址位于安徽省六安市裕安区平桥工业园。

安徽省徽派家私有限责任公司的统一社会信用代码/注册号是9134150079013183XU,企业法人陈绵勇,目前企业处于开业状态。

安徽省徽派家私有限责任公司的经营范围是:许可经营项目:(无)。一般经营项目:家俱生产、销售;建筑装潢、设计;园林绿化;建材、电器、灯具、日用百货、床上用品经营;窗帘保洁;货物配送;婚庆服务。在安徽省,相近经营范围的公司总注册资本为146577万元,主要资本集中在 1000-5000万 和 100-1000万 规模的企业中,共303家。本省范围内,当前企业的注册资本属于优秀。

安徽省徽派家私有限责任公司对外投资0家公司,具有2处分支机构。

通过百度企业信用查看安徽省徽派家私有限责任公司更多信息和资讯。

3徽派建筑的徽州壁画

徽州壁画即徽派建筑壁画,是壁画的一种,所谓壁画,就是绘在壁面上的画,是人类历史上最早的绘画形式之一。壁画有岩画、洞窟壁画、宫廷壁画、墓室壁画、寺观壁画和民居壁画等。岩画如内蒙古阴山岩画,洞窟壁画如敦煌莫高窟壁画,宫廷壁画如秦都咸阳宫壁画遗迹,墓室壁画如辽宁金县营城子壁画墓,寺观壁画如北京郊区的法海寺大雄宝殿中的壁画《帝释梵天图》,民居壁画如徽州壁画。 徽州壁画就是当地百姓俗称的墙头壁画,集艺术性、对称性、思想性为一体,广泛描绘在徽州古民居的屋檐下和门楼、窗檐上下,和石雕、砖雕、木雕一样,是徽州建筑的一个重要组成部分,是为徽州建筑服务的。它与一般壁画的区别在于:它是以一个墙面上多幅壁画为一体,以儒家思想和喜庆祝福为主要内容,以工笔写意为技法,以美化徽州民居外墙壁为目的的一种墙面壁画。 住惯了城市高楼的酒店,已对其产生了乏味,现如今民宿业不断发展,备受人们的青睐,尤以徽派高端民宿最佳,婺源是徽派建筑的代表,其旅游业也是蒸蒸日上,衍生出了众多高端民宿,其中以思溪延村景区内的保鉴山房为典型带便,其内共有四个房间,状元、榜眼、探花、进士,每间房都有不同的特色,从中能够找到家的感觉。“状元、榜眼、探花、进士”,一间间诠释着书乡文化的精品客房散发着书香气息;“茶室、瓷器、家装、山水”,一处处穿越着千年文明的闲适雅居渗透着天人合一。这,就是2015年岁末,婺源旅游股份公司最新推出的“文化贺礼”,一座精品古宅民宿“保鉴山房”揭开了神秘面纱。

4春秋时期百姓家具

史前至春秋时期家具有何特点? 老家具知识 >> 史前至春秋时期家具有何特点? >> 正文 史前至春秋时期家具有何特点?[藏点 CangDian.com 中国艺术品收藏门户] 2006-07-15 从史前~公元前476年是家具缓慢发展期。由于木、竹家具易腐不易保存,有关出土物并不多见。... www.cangdian.com/Doc/zhishi/HTML/06071517 ... 9K

5清末民初黄花梨家具

和经济形势一样,最后的疯狂。近几年会降,但最终还是因为材料的短缺而增值。

6徽派装修配什么颜色窗帘

首先,根据所在地区的环境和季节而权衡确定。夏季宜选用冷色调的织物,冬季宜选用暖色调的织物,春秋两季则应选择中性色调的织物为主。从居室整体协调角度上说,应考虑与墙体、家具、地板等的色泽是否协调。假如家具是深色调的,就应选用较为浅色的窗帘,以免过深的颜色使人产生压抑感。 其次,应考虑窗帘的式样和尺寸。在式样方面,一般小房间的窗帘应以比较简洁的式样为好,以免使空间因为窗帘的繁杂而显得更为窄小。而对于大居室,则宜采用比较大方、气派、精致的式样。窗帘的宽度尺寸,一般以两侧比窗户各宽出10厘米左右为宜,底部应视窗帘式样而定,短式窗帘也应长于窗台底线20厘米左右为宜;落地窗帘,一般应距地面2~3厘米。

7陕西铜川 古典家具

没,只有一些家具城捎带一些,但是都不好。北关的家具城比较多一些,你可以去看看。

8安徽古典家具市场哪里质量好?价格又便宜的?

该品牌的古典家具质量好,它沿袭了传统明清家具经典设计元素的基础上,将造型设计和装饰简化,并融入现代欧式家具的时尚元素,以现代手法去演绎传统文化精髓的新型古典家具,家具拥有传统中式家具的典雅、端庄气质,广受市场的青睐。

9大家徽派建筑配什么窗帘

首先,根据所在地区的环境和季节而权衡确定。夏季宜选用冷色调的织物,冬季宜选用暖色调的织物,春秋两季则应选择中性色调的织物为主。从居室整体协调角度上说,应考虑与墙体、家具、地板等的色泽是否协调。假如家具是深色调的,就应选用较为浅色的窗帘,以免过深的颜色使人产生压抑感。 其次,应考虑窗帘的式样和尺寸。在式样方面,一般小房间的窗帘应以比较简洁的式样为好,以免使空间因为窗帘的繁杂而显得更为窄小。而对于大居室,则宜采用比较大方、气派、精致的式样。窗帘的宽度尺寸,一般以两侧比窗户各宽出10厘米左右为宜,底部应视窗帘式样而定,短式窗帘也应长于窗台底线20厘米左右为宜;落地窗帘,一般应距地面2~3厘米。