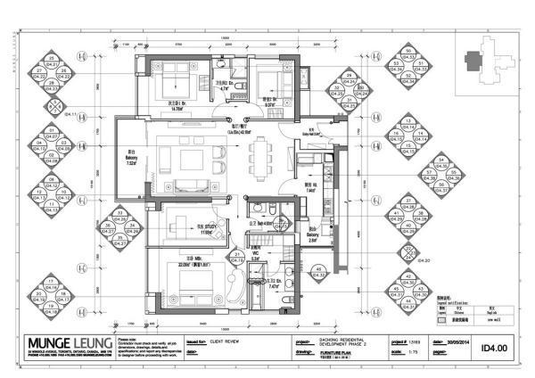
1为什么是家具定位图,定位图和布置图有不同?

家具的定位图是具体准确的尺寸,方位布置图就是某一个大致的方向位置

2最基本的装修施工平面布置图纸有哪些 5大必备图纸介绍

在家居装修中设计图纸起著至关重要的作用,它是施工的基础,如果图纸出现了问题,就会耽误装修的进度,甚至影响装修的效果,那么最基本的装修施工平面布置图纸有哪些?今天就由一号家居网为大家带来5大必备图纸介绍。

最基本的装修施工平面布置图纸有哪些?5大必备图纸介绍如下:

1、原始建筑测量图

包括房间的具体开间尺寸、墙体厚度、层高、房间梁柱位置尺寸、门窗洞口的尺寸位置、各项管井(上下水、煤气管道、空调暖管、进户电源)的位置、功能、尺寸等,这是一切设计图纸的基础,如果一开始的测量图纸出现偏差,此后的设计图纸和施工都会因此出现误差,导致整个工程无法正常进行。

2、装饰平面布置图

平面设计图中应具备的内容:墙体定位尺寸,有结构柱、门窗处应注明宽度尺寸;各区域名称要注全,如客厅、餐厅、休闲区等,房间名称要注全,

如主卧、次卧、书房等;室内、外地面标高、墙体厚度应注明;如有楼梯,标明平面位置的安排、上下方向示意及梯级计算;门的开启方向;活动家具布置及盆景、雕塑、工艺品等的配置。

3、天花吊顶布置图

要求标明天花造型的尺寸定位、灯具位置及详图索引,并应标注天花底面相对于本层地面建筑面层的高度,同时还要注全各房间的名称。

4、地面材质图

标明需要铺设的地面材料种类、地面拼花、材料尺寸及不同材料分界线。

5、配电系统图

配电图也是设计图纸中十分重要的一部分,各种电源插座的位置都需要妥善安排,业主在查看配点图时,需要注意的是插座的位置、数量,位置的安排要根据实际使用的方便性安排,

综合考虑门窗、家俱的安排,不能让插座被门窗遮蔽,影响正常使用,数量上也不能一味地追求节俭,要根据家中电器的数量和种类安排,还要适当地留出富余。

大家在做家居装修时,是否注意到我介绍的五个最基本的装修施工平面布置图纸,很多人忽略了装修图纸的重要性,其实一个完善的设计图纸会给大家的装修带来很多方便哦。

3农村家里新盖的平房,大家帮忙看下客厅家具怎么布置

农村修的房子大,中式风格的话,客厅可以考虑一套中堂,既传统又大气!然后两边安放沙发、茶几

4画房间布置图

如果对于专业的设计师来说,画房间布置图的时候,主要是用CAD。画图时不光要有软件的操作,还要有人机工程学的应用,土建学,家具学,风格学。甚至是风水学。

平面布置图,和平面规划图,可以说是整体设计环节中,含金量最高的一部分。设计师倾注心血最多的一部分。也是影响以后居住质量最大的一部分。但是往往人们确忽略了平面布置的重要性。

一个相同的房型,因不同的居住者,不同的家庭环境,不同的生活水平,不同的审美喜好,在设计师手中,会出现多种多样不同的平面规划方案。这就是设计师的方案精华所在。

如果是一个外行人,你可以借助一些比较现成的软件,比如酷家乐,圆方等来实现平面布置。但是,平面布置,绝对不是简单的放几个家具,摆几个装饰品就OK的。什么空间的动线,对流,协调度,便捷性,美感,轴线,对称,比重关系等 等同样也需要考虑在内。

还有一点非常重要。平面规划出来,也就意味着吊顶天花的格局已经固定了。天花的分区和吊法,是要根据平面布局来关联的。所以我们在做平面规划的时候,也要想到顶子,比如梁柱,天花的大概形式,厚度,灯具的选择,照明层次,材料等

而天花和平面布置,就直接关联到地面铺装,地面的分区,拼花等等

总之一个房间都是相互关联的。做第一部的时候,就要有意识的想好关联的其它地方,有没有不适合,不方便,或不能实施的问题。

家具布置图:为什么是家具定位图,定位图和布置图有不同?

家具布置图:为什么是家具定位图,定位图和布置图有不同?

5想要把家里装修成自己喜欢的样子,有没有简约又有设计感的家具可以推荐呢?

曲美的很多家具设计都透着一股简约时尚的感觉,深得我心啊。 家具就是在曲美买的哦,亲戚来家里没有不夸的。去实体店看看吧,愿你也能找到心仪的家具哦!

6酒店式单身公寓怎样布置家具好看

酒店式的单身公寓空间比较小,布局合理很重要,可以上那禄家具商城看看,有样板可以参考的。

7老板办公室的家具布置应该注意哪些???

老板办公室的家具布置应该注意哪些?
办公家具以放在窗前左侧为宜,窗户前面光线充足,空气清新,能使读书的人神清气爽,心情愉快;另一方面也能有效避免窗外人流、车流分散注意力。如果光线太强,可以放下窗帘调节;办公家具要面向门口,门口为向,外为明堂,这种摆法可使人头脑清醒、思维活跃,但切不可正对门,被门直冲。
第一点首先老板的办公桌一定要和员工的办公桌椅有所区别,例如大小,老板办公桌椅要比员工的大一些,老板办公桌椅的前方视野要开阔,要有足够的活动空间,有些老板喜欢把自己的桌子顶在员工的桌子后面用来监视员工的行为,这可是万万不可取的,不但对自己不利,对员工也不利。
第二点是办公室装修的风格应该以平淡简约为主,颜色最好是白色之类的,不要弄的五颜六色。
第三点相信很多人都知道,在我们给客户设计方案的时候这是办公家具人员最基本的常识,那就是办公桌不能背对着窗户,后背虚空对老板的裁决有一定的影响。

8欧式家具装饰效果图哪里找啊?

欧式家具装饰效果图你到装修快车网装修效果图里面找找看吧

9家里装修后的家具怎么搭配呢?

可以提前想好了,用打扮家先看下效果,然后再买一些可以喜欢的,可以搭配的家具饰品等

10房间尺寸与家具布置内容包括

不管是家具设计还是空间设计,人体工程学的知识少不了,之前就有专门撰文介绍过。人体工程学里有一个很重要的知识领域,就是对功能尺寸的研究,包括人体尺寸与物体或空间尺寸。

设计从某种角度上来说是对合理尺度的把握,那么熟知常见尺寸就显得非常重要。

室内空间的最佳尺寸

不同的空间,对尺寸的要求是不一样的,接下来我们对卧室、餐厅、客厅等进行分析。

卧室

面积:12平方米以上~30平方米

卧室里的家具不外乎床、大衣柜、床头柜等,虽说家具不是很多,但“个头”都不小,有时候摆放得不合适,会使本来就不宽敞的卧室显得更加拥挤。

双人主卧室的最小面积是多少呢?

至少12平方米

夫妻二人的卧室不能比这更小了,在房间里除了放置床以外,还可以放一个双开门的衣柜与规格为120×60厘米的两个床头柜。在一个3×4.5米,总面积为13.5米的房间里可以放更大一点的衣柜,或者选择小一些的双人床。

大衣柜的高度是多少?

240厘米左右

这个尺寸考虑到了在衣柜里能放下长一些的衣物,并在上部留出了放换季衣物的空间。这个尺寸是指成型的大衣柜,如果想订做衣柜,则可以设计成到顶的衣柜,再安置一个漂亮的推拉门,则既省地儿,又可多放很多衣物。

衣柜放置于床相对应的墙边,那么两件家具之间的距离多大合适呢?

90厘米左右

若想方便地打开衣柜门,而不致于被绊倒在床上,这个距离是最合适的,但大衣柜若采用推拉门,则不存在这个问题,则可以距离更小点儿。

餐厅

面积:10平方米~20平方米

对于长方形和椭圆形的餐桌这个尺寸是最合适的。现在的餐厅空间一般都为长方形的,所以大方桌及圆桌较少使用,长方型的六人餐桌是最普遍的,可以选购一些可以伸缩的餐桌。

餐桌离墙的距离?

80厘米

这个距离是包括把椅子拉出来,以及能使就餐的人方便活动的最小距离。一般人们用餐时还是希望能有一个宽敞的空间,可以随意的进出,所以如果离墙的距离过近,会使用餐不太舒适。

餐桌的标准高度?

72厘米左右

这是桌子的合适高度,一般餐椅的高度为45厘米较为舒适。目前市场上餐椅的高度有些差别,挑选时最好先试坐一下,看看是否与餐桌的高度合适。

一张六人餐桌大约要占多大的面积?

300×300厘米

需要为直径120厘米的桌子留出空地,同时还要为在桌子四周就餐的人留出活动的空间。这个方案适合于那种较大的餐厅。

客厅

面积:20平方米~40平方米

客厅是居室的门面,可以说对家具尺寸的要求是最严格的,别看都是一些小数字,却足以令你的客厅成为一个舒适协调的地方。

电视组合柜的最小尺寸?

200×50×180厘米

对于小户型的客厅,电视组合柜是非常实用的,这种类型的家具一般都是由大小不同的方格组成,上部比较适合摆放一些工艺品,柜体厚度至少要保持30厘米。

而下部摆放电视的柜体厚度则至少要保持50厘米,同时在选购电视柜时也要考虑组合柜整体的高度和横宽与墙壁的面宽是否协调。

长沙发或是扶手沙发的椅背应该有多高?

85至90厘米

沙发是用来满足人们的放松与休息的需求,所以舒适度是最重要的,这样的高度可以将头完全放在靠背上,让颈部得到充分放松。

如果沙发的靠背和扶手过低,建议增加一个垫子来获得舒适度,如果空间不是特别宽敞,沙发应该尽量靠墙摆放。

容纳三个人的沙发搭配多大的茶几呢?

120×70×45厘米或100×100×45厘米

在沙发的体积很大或是两个长沙发摆在一起的情况下,矮茶几就是很好的选择,茶几的高度最好和沙发坐垫的位置持平。目前市场上较为流行的是一种低矮的方几,材质多为实木或实木贴皮的,质感较好。

确保使用动线的流畅贯通

认识完常用家具的尺寸,再来了解一下关于走道即通过宽度的基本尺寸。能够保证最低限度的通行宽度,才能够便于空间的利用。保证使用的便利性。

餐厅&客厅

家具布置图:为什么是家具定位图,定位图和布置图有不同?

上图表示的是能够保证一个人通过的标准尺寸是600mm,两个人同时通过则为900~1200mm。当然这是家居的尺寸而不适用于公共建筑。

家具布置图:为什么是家具定位图,定位图和布置图有不同?

上图有三个层面的尺寸:

1.从沙发到电视台:2500mm以上,太近的距离会影响视线,当然结合屋内的实际宽度调整合适的距离是非常必要的。

2.家具之间的通道:600mm以上,这个是需要保证的最小尺寸。如果是经常利用的主通道或是有需要搬运东西的通道的话最好能够留出800mm以上的空间。

3.从电视屏幕到视点:1300mm以上,一般来说电视越大,这个距离就需要留的越大。37英寸的屏幕的话,最好能够留出1.4m,40英寸为1.5m左右为佳。

沙发到茶几的距离:300mm以上。

如果能留出400以上就能愉快的放松脚了。特别对于矮式沙发来说,姿势基本是躺在靠背上的能够留出400mm以上的空间才不会显得局促。

下图中,椅子周边:600mm以上;椅子+通道:1000mm以上;厨房收纳前:800mm以上。

家具布置图:为什么是家具定位图,定位图和布置图有不同?

卧 室

下图为了表示卧室的各种情况,采用了两张单人床的布局。可以看到主要有以下几点:

家具布置图:为什么是家具定位图,定位图和布置图有不同?

侧身通过的最小通道:300mm。当然,不到万不得已不建议采用这个尺寸;

出入口、通道和床与其他家具的距离:600mm以上;

化妆台:900mm以上。

家具布置图:为什么是家具定位图,定位图和布置图有不同?

家具布置图:为什么是家具定位图,定位图和布置图有不同?

厨 房

厨房的布局千变万化,归纳起来可以有如下一些布局方式:

厨房平面布局模式

1.一字形

图中B为宽度:650mm。当然也有更窄的,国内也有做到550mm甚至500mm左右的。不过目前厨具越来越大的趋势加上考虑使用的便利性,建议做到650甚至700mm左右。A是标准尺寸的长度,可以做到豪华的3600mm。

2.靠墙式

家具布置图:为什么是家具定位图,定位图和布置图有不同?

家具布置图:为什么是家具定位图,定位图和布置图有不同?

图中C为两边的操作台进深,均为650。当然如果条件不允许,做到550也是可能的。顺便说一下一般的布置顺序是:冰箱➡️水池➡️操作灶台,对应了一系列过程:从冰箱取菜➡️清洗➡️切➡️烹饪。

L字型的移动空间是非常方便的,一转身就能进行下一项操作,对于使用轮椅的情况是比较理想的排布。

3.对面式

家具布置图:为什么是家具定位图,定位图和布置图有不同?

家具布置图:为什么是家具定位图,定位图和布置图有不同?

对面式布局考虑到厨房与餐厅的交流,在操作台留出一定的空间作为小吧台使用,因为较宽,奢侈的做到900以上为佳。

4.彻底敞开式

家具布置图:为什么是家具定位图,定位图和布置图有不同?

对面式布局考虑到厨房与餐厅的交流,在操作台留出一定的空间作为小吧台使用,因为较宽,奢侈的做到900以上为佳。

厨房立面操作台布局

相对平面布局的变化多样,厨房的立面就显得比较规格化。但是在设置操作台高度的时候,重视使用者的实际身高合使用情况选择合适的操作台高度是非常必要的。

家具布置图:为什么是家具定位图,定位图和布置图有不同?

▲部分身高的参照